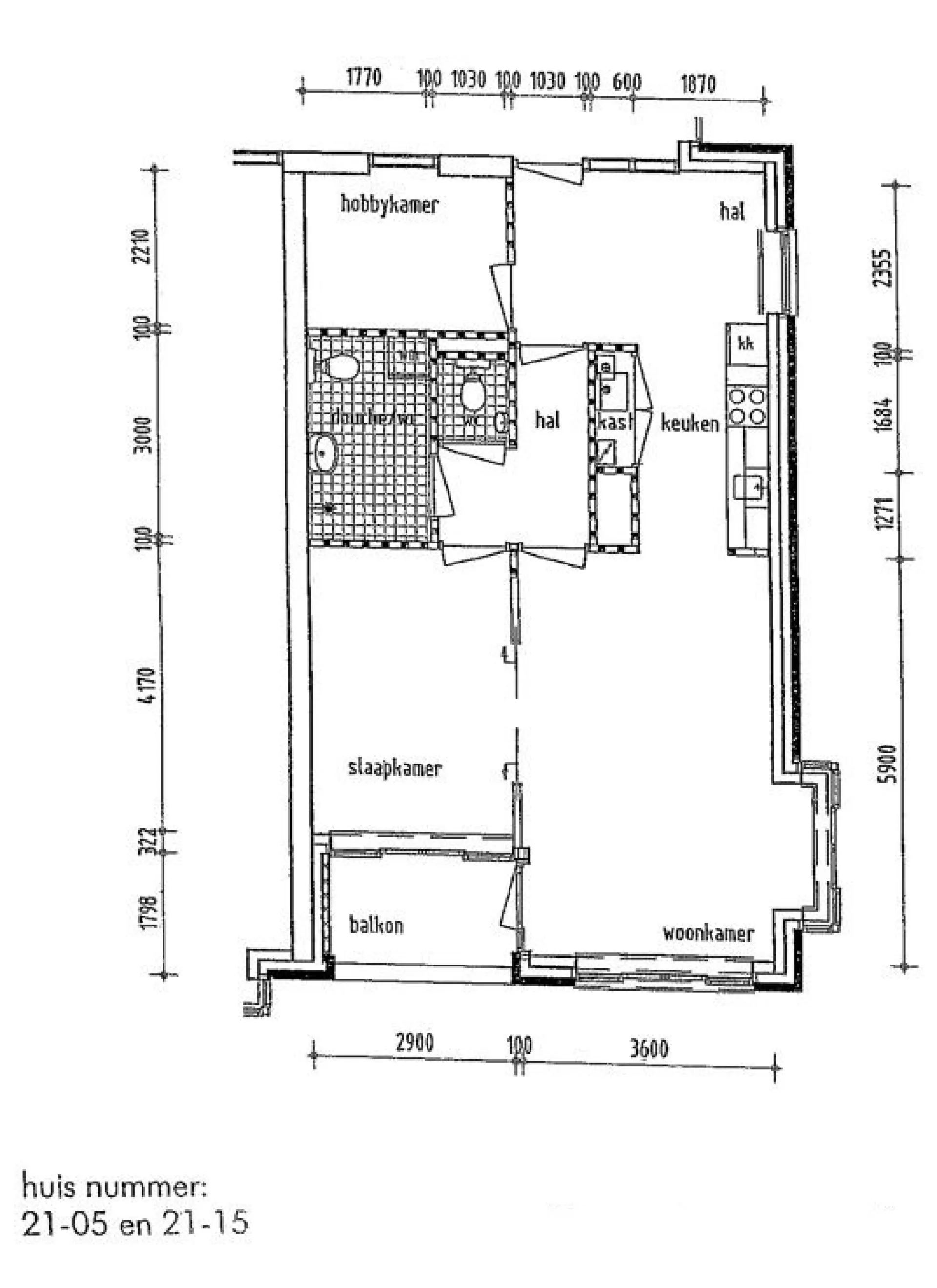
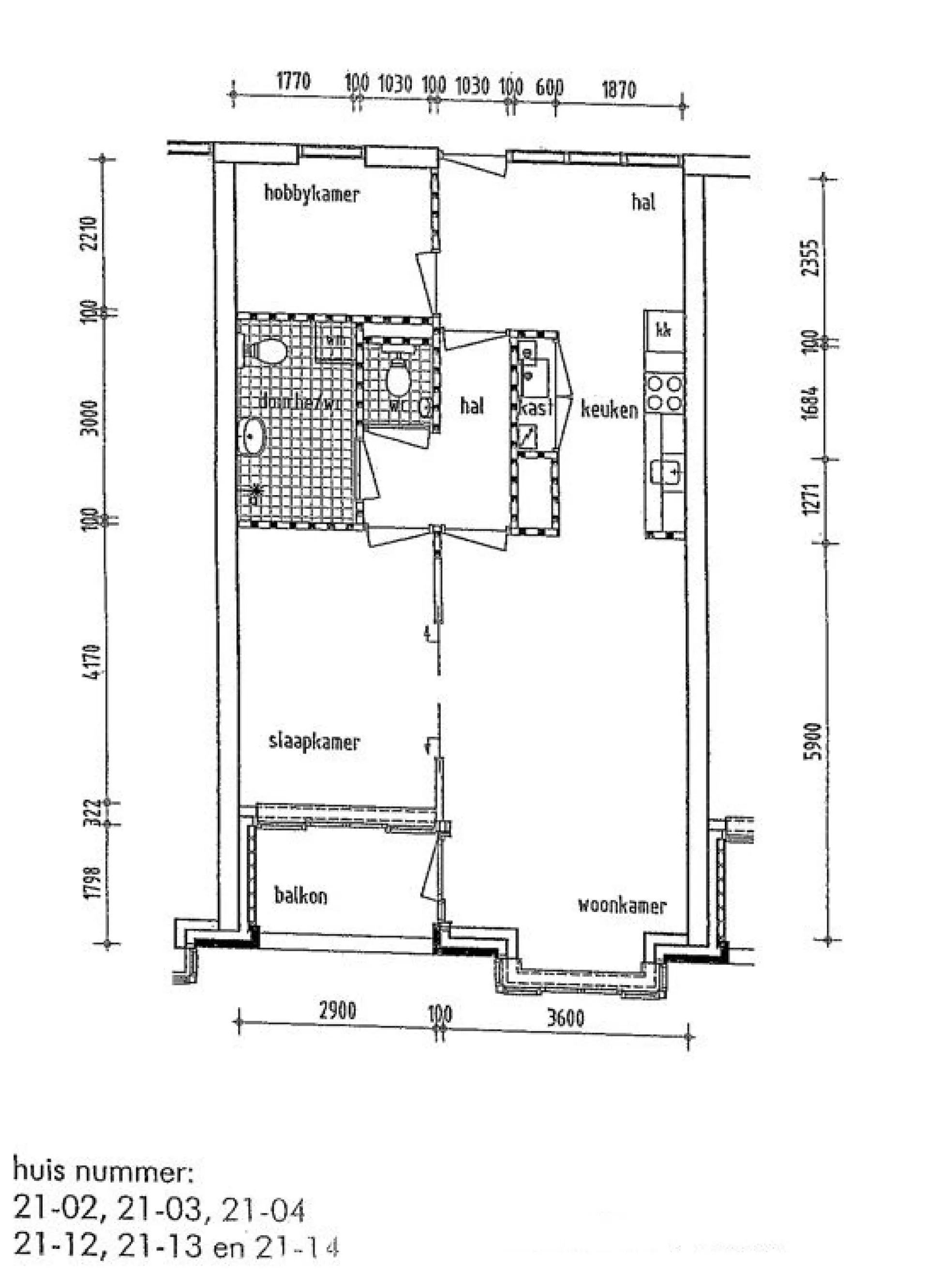
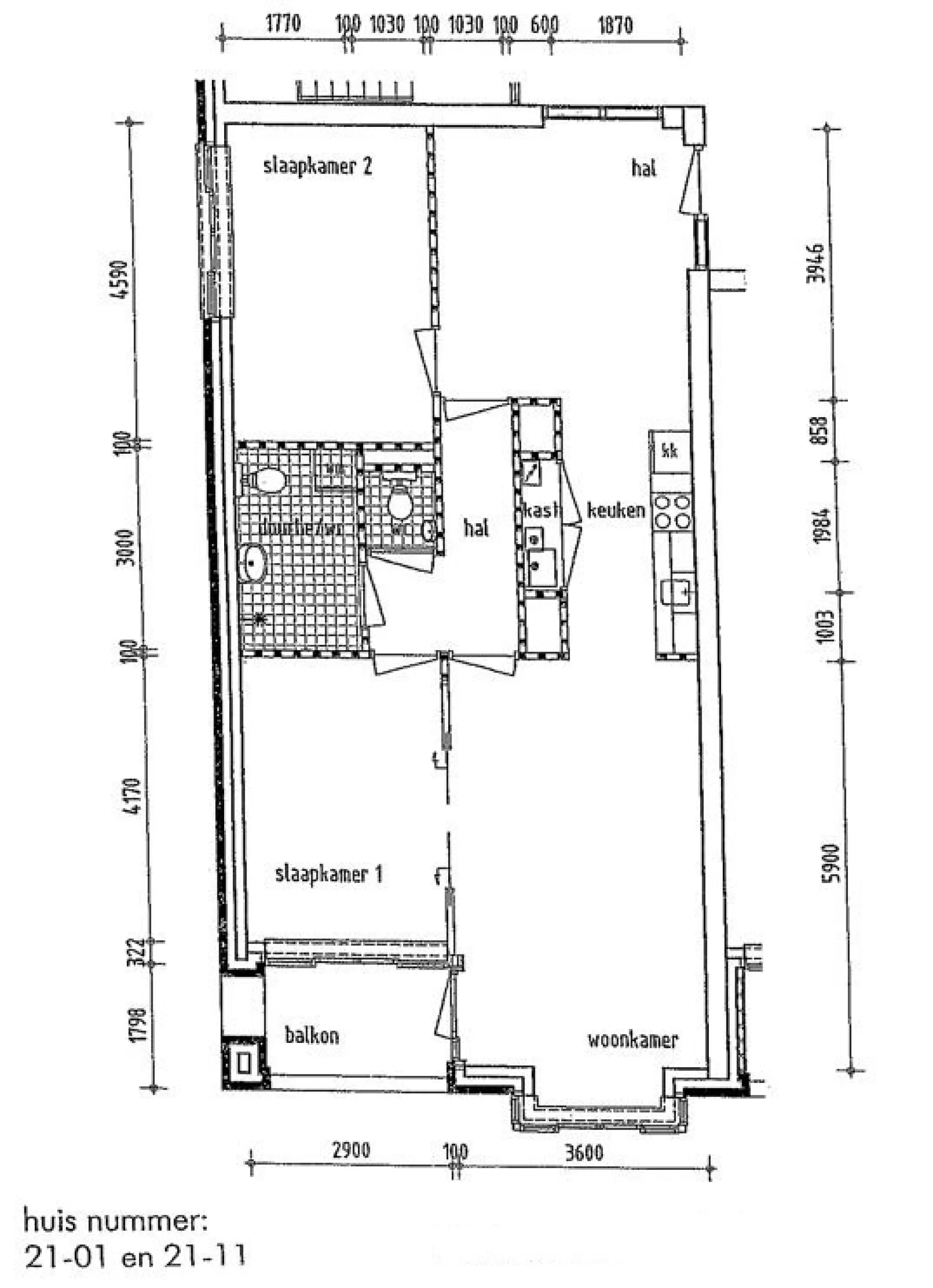
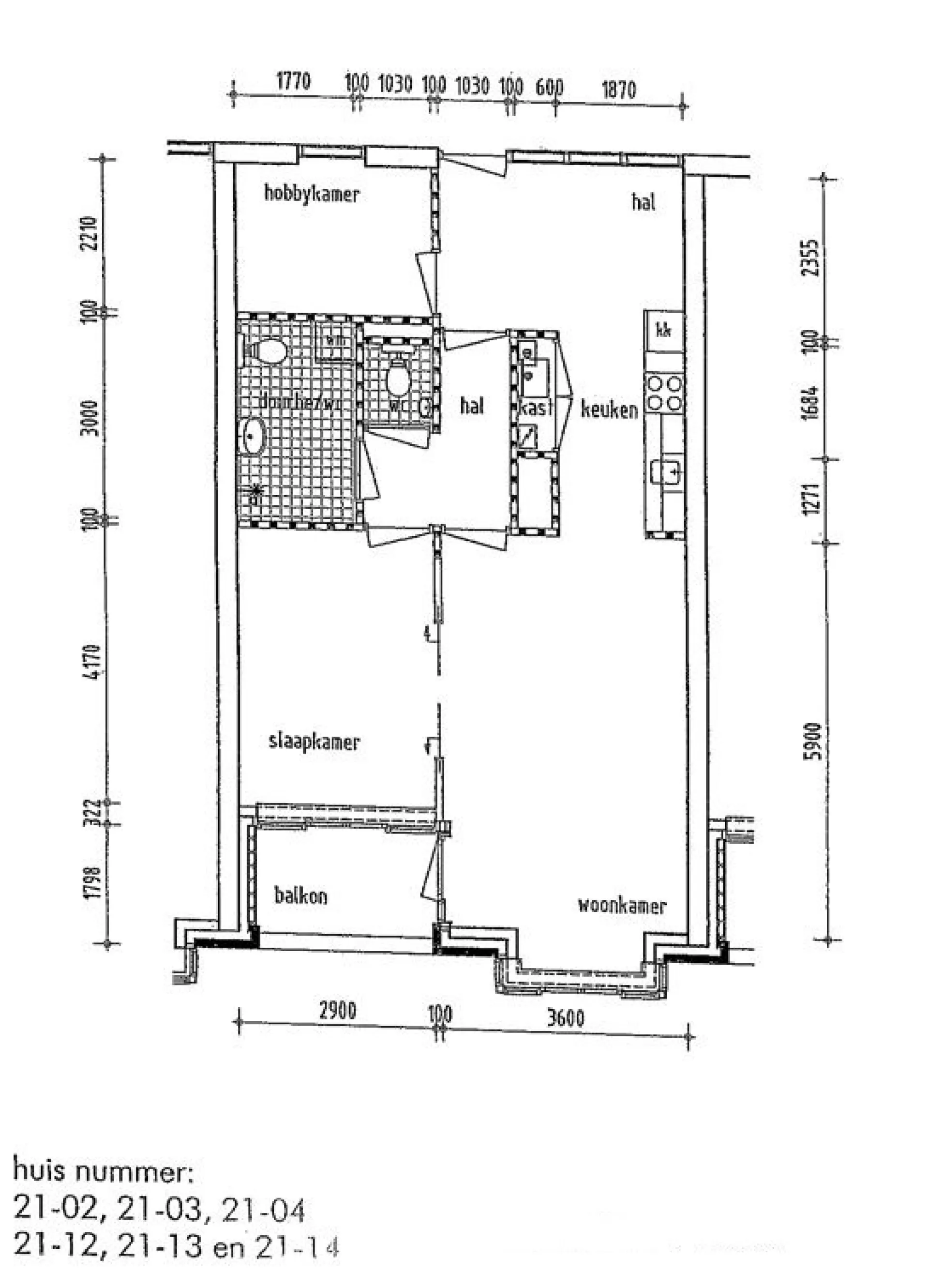
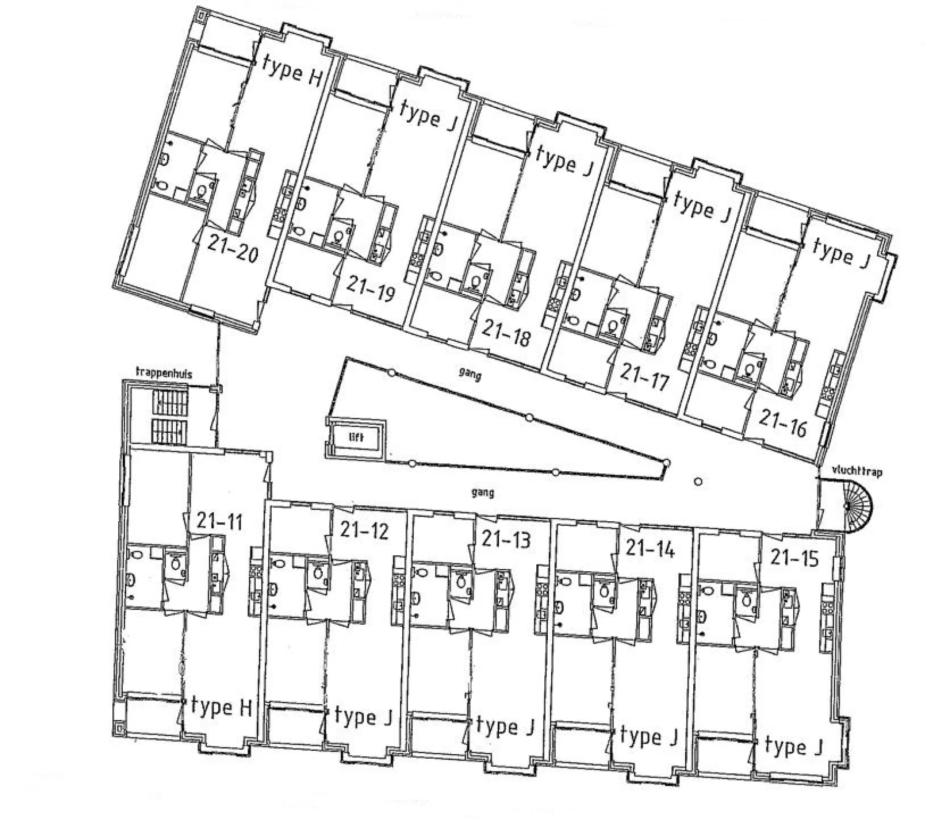
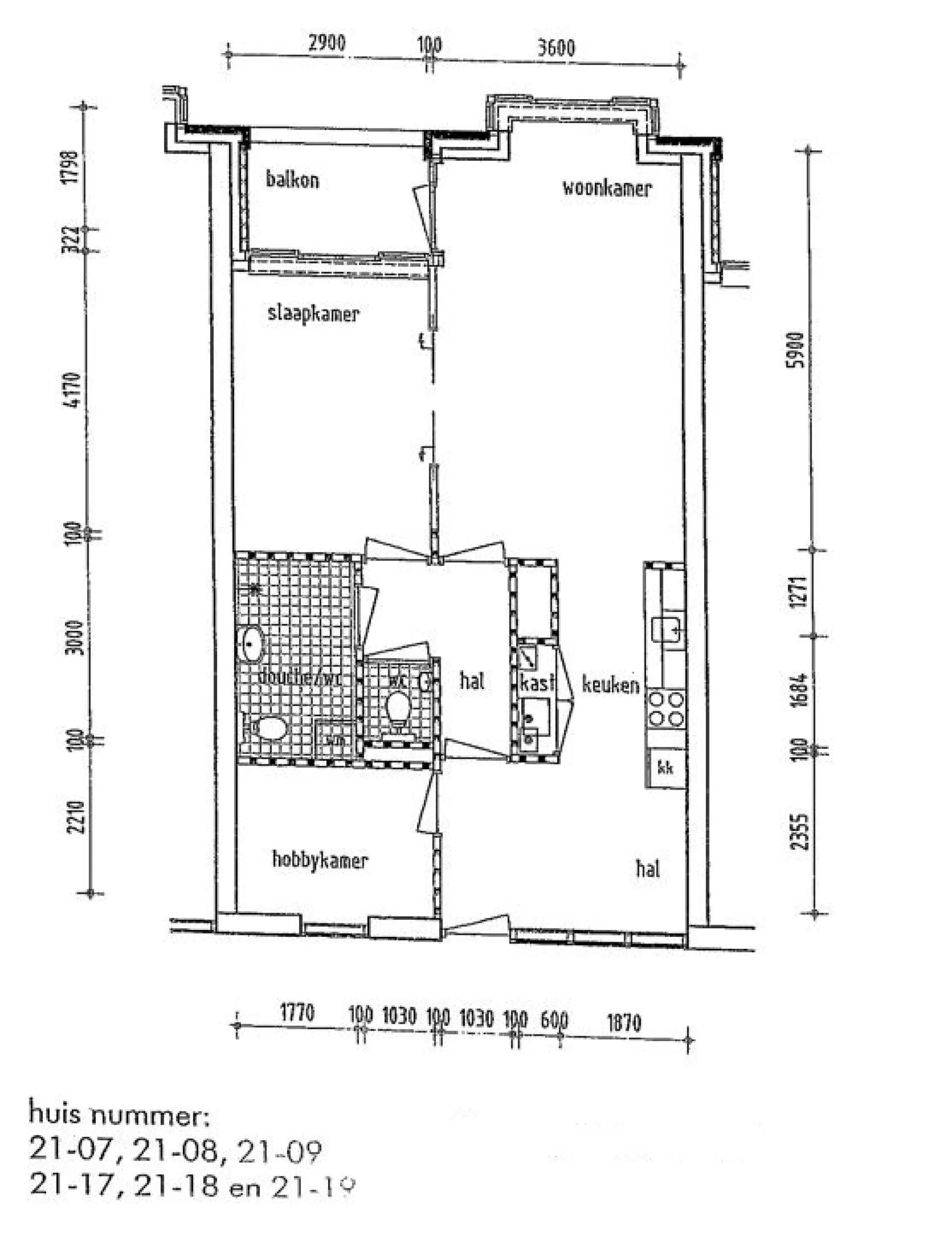
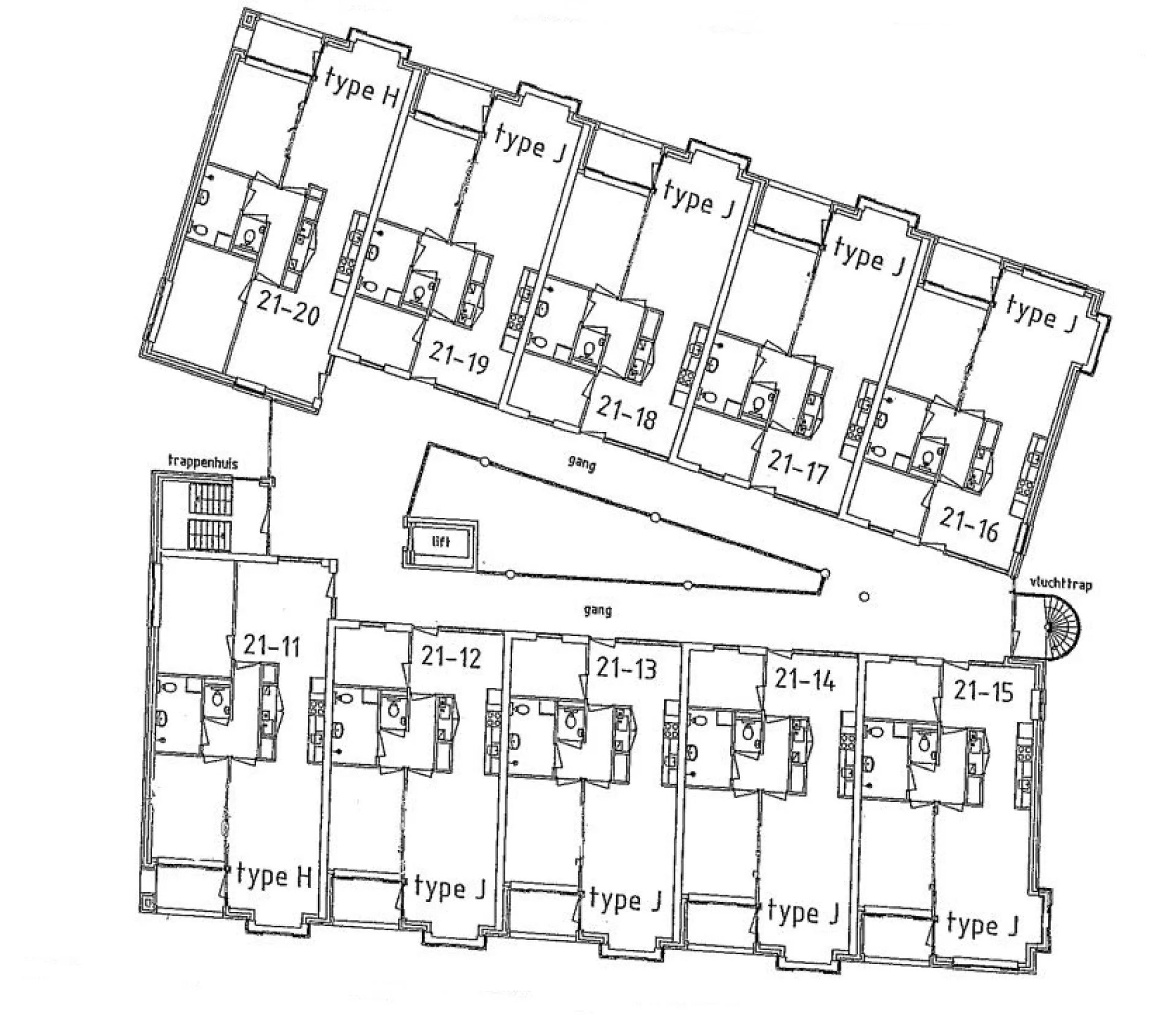
Hoe ziet uw appartement eruit?
De Reestlanden ligt in een groenrijke omgeving aan de Reest in de Oranjebuurt in Meppel. Vanuit de appartementen heeft u een prachtig uitzicht over de binnentuin of over de Reest.
In het appartement is een kijk- en luisterverbinding, waarmee u de toegangsdeur (de hoofdingang van het aanleuncomplex) kunt openen. In de hal kunt u via een camera zien wie er voor de hoofdingang staat.
Vanuit Zwolle, Hoogeveen en Steenwijk, vanaf afrit Meppel-Zuid, is de Reestlanden eenvoudig per auto te bereiken. Het winkelcentrum en station ligt op een loopafstand van ca. 10 minuten.
