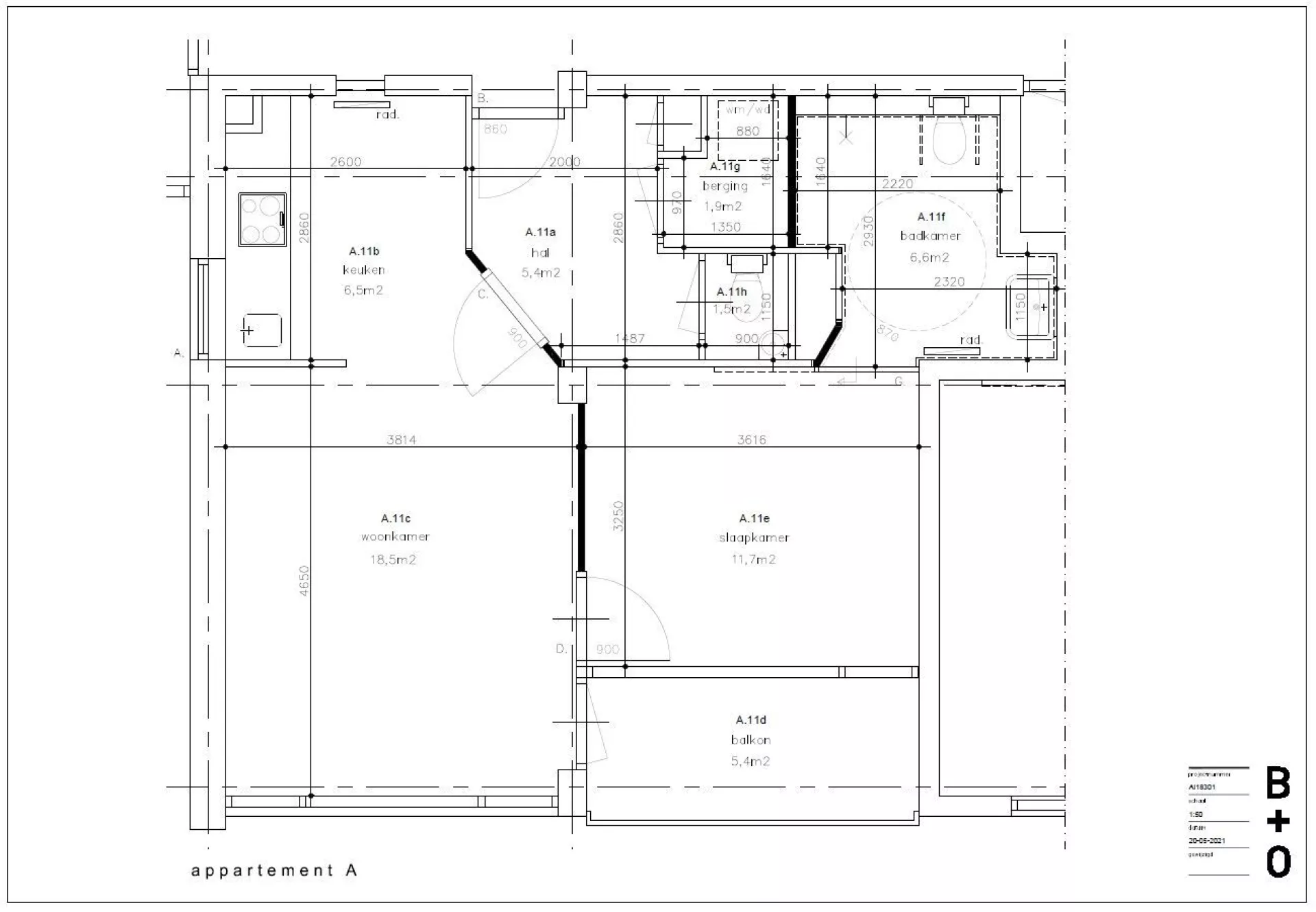
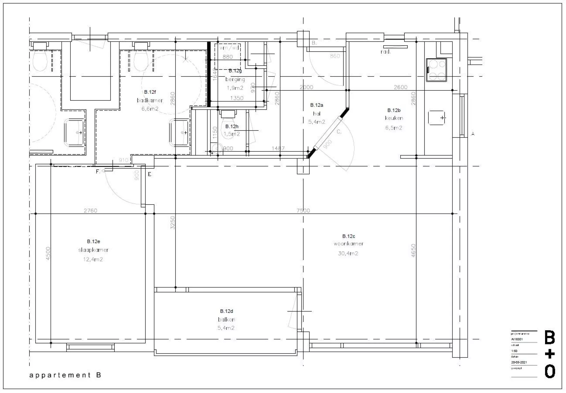
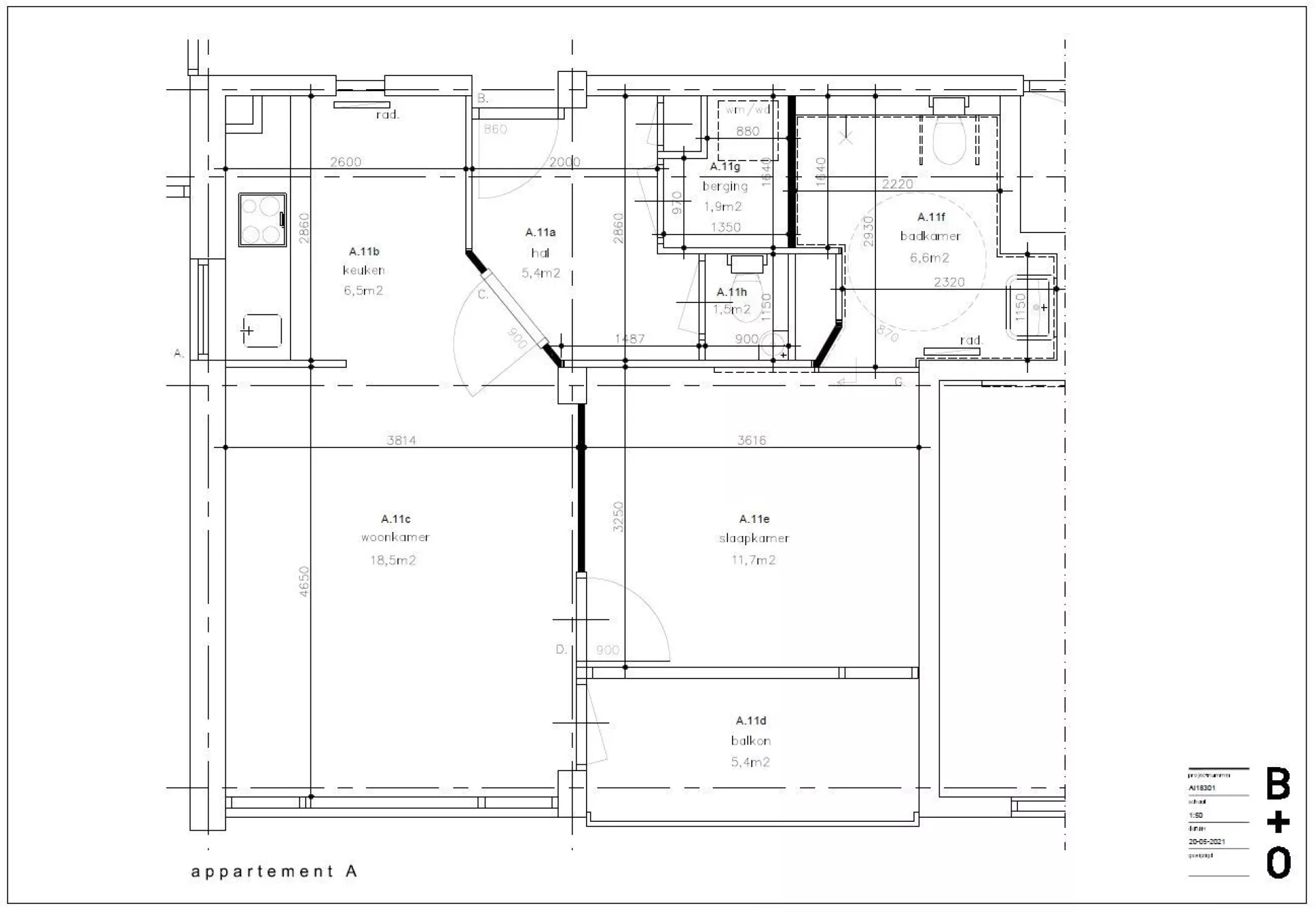
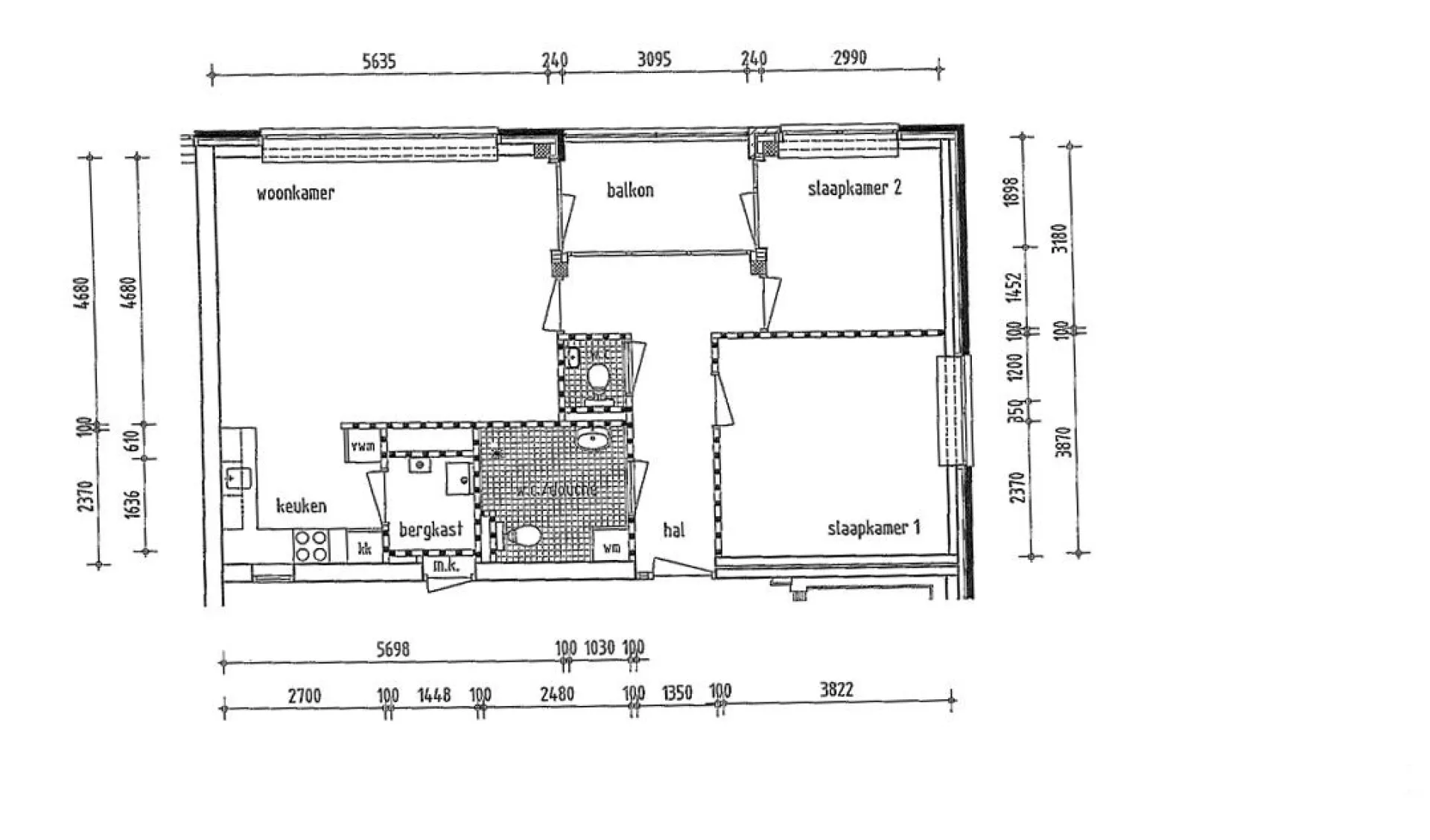
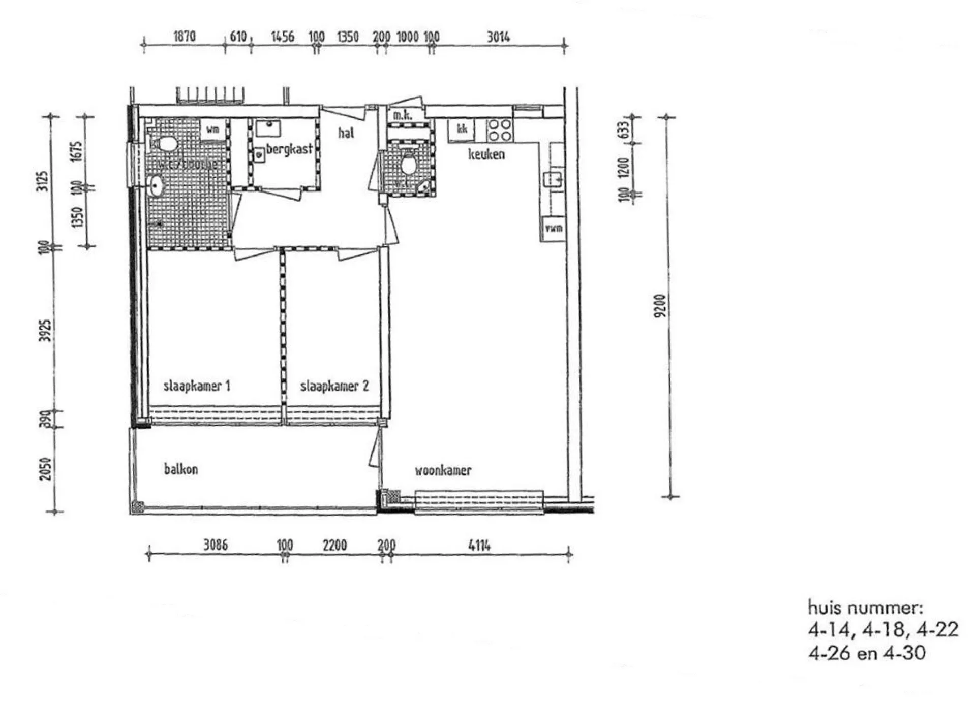
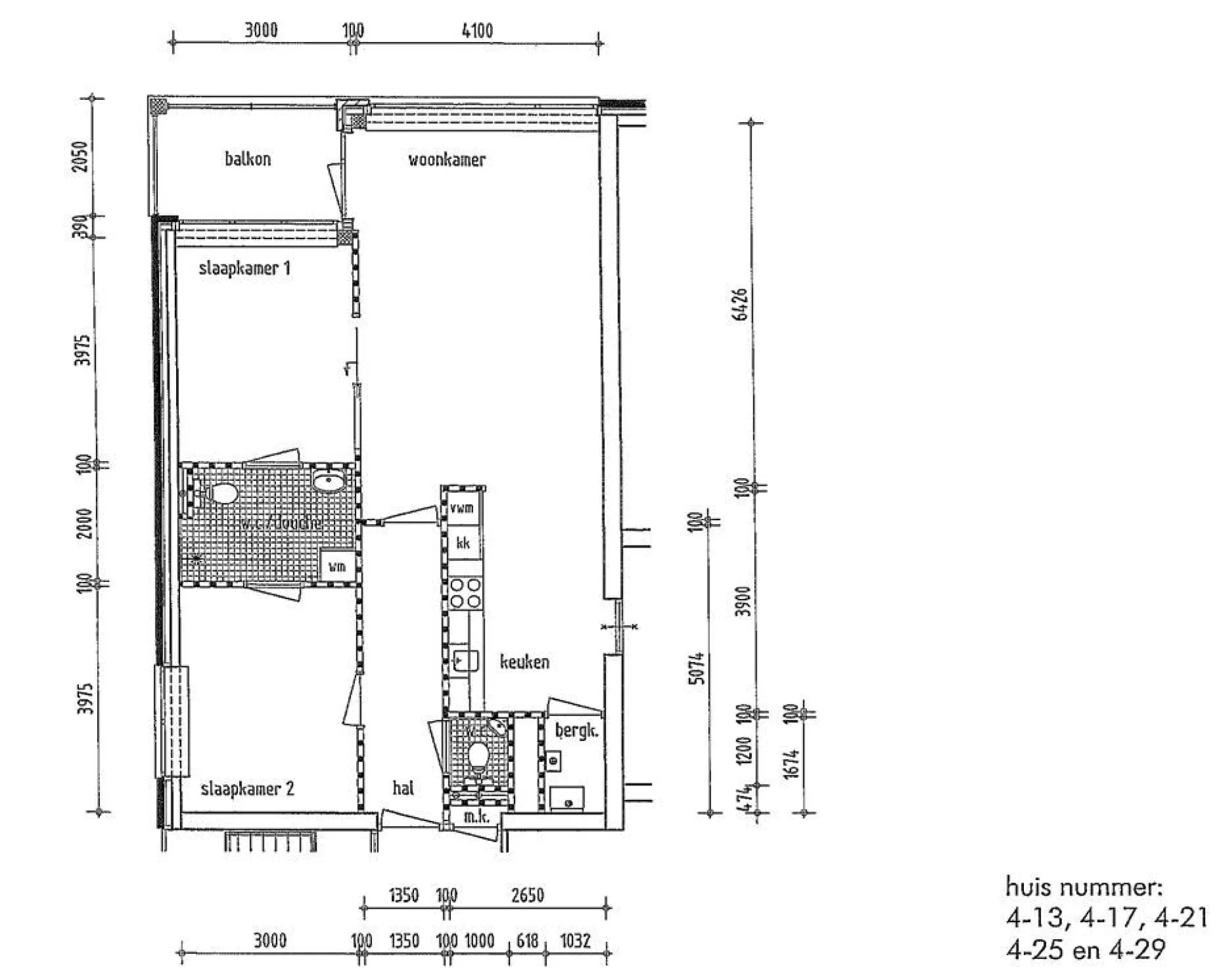
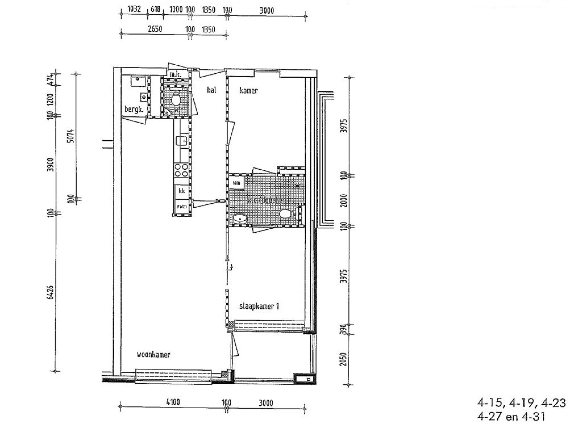
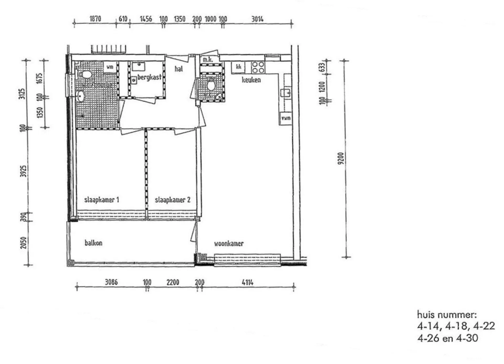
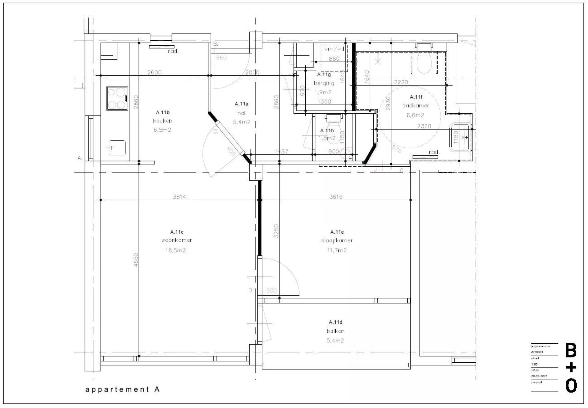
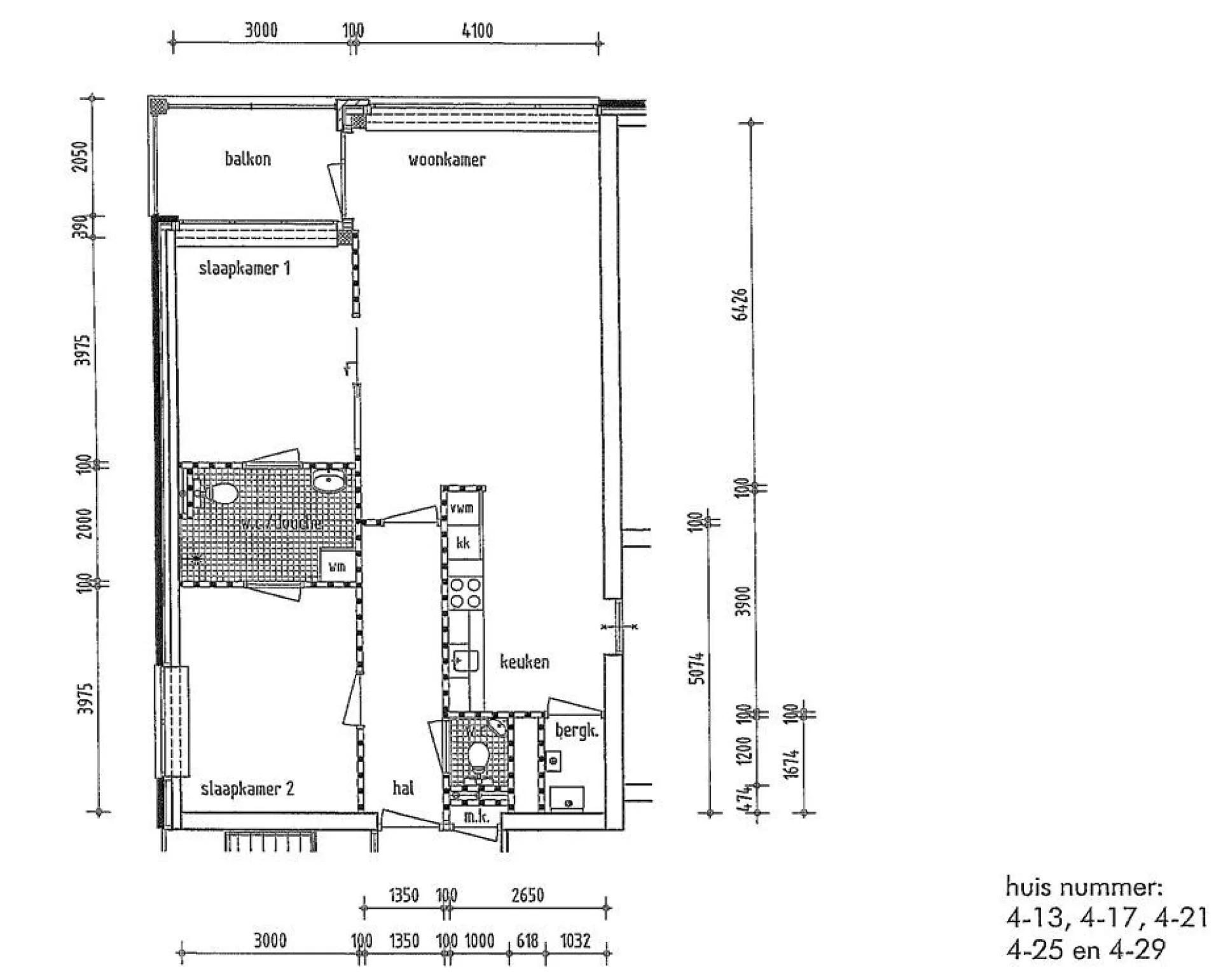
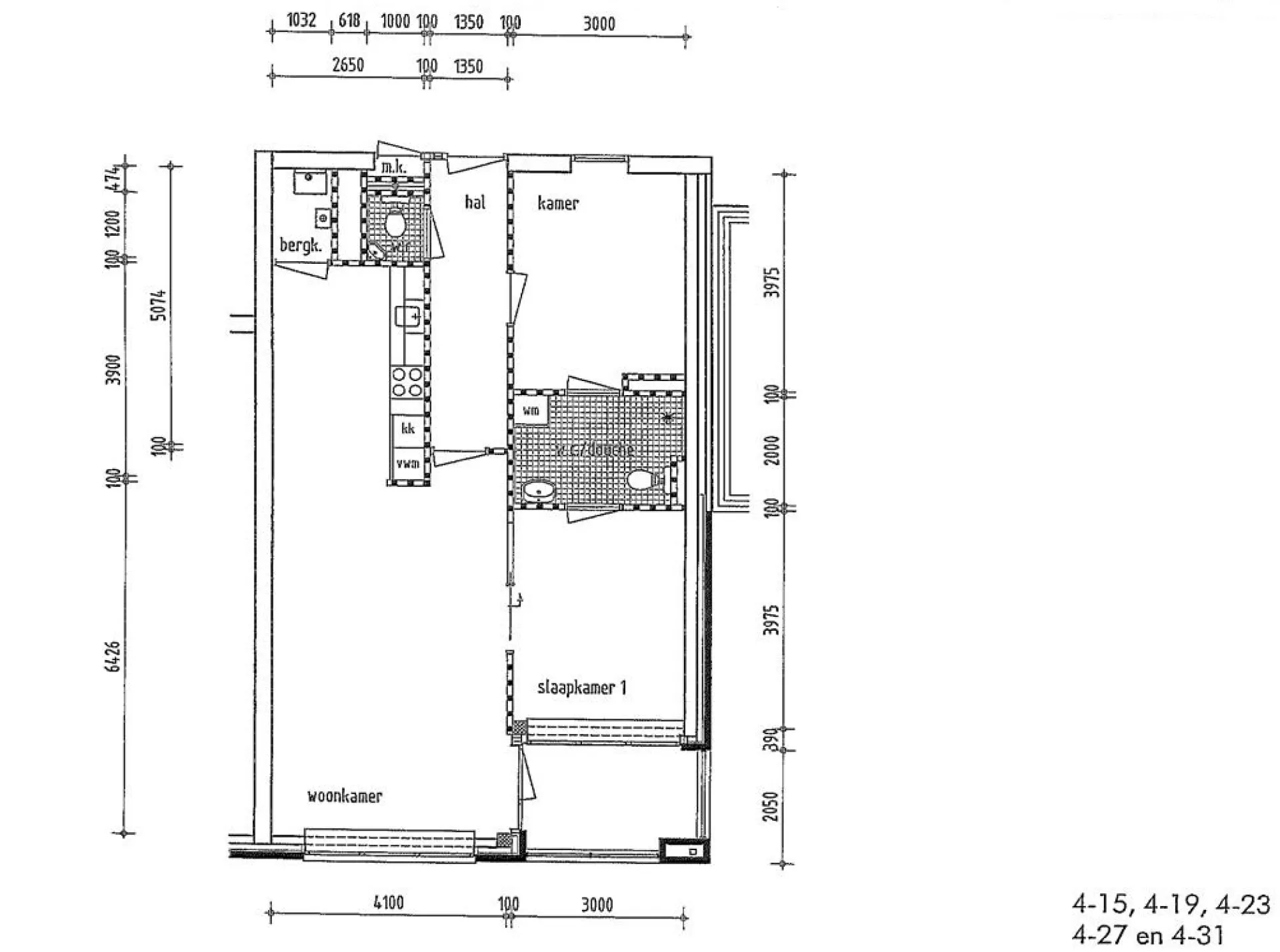
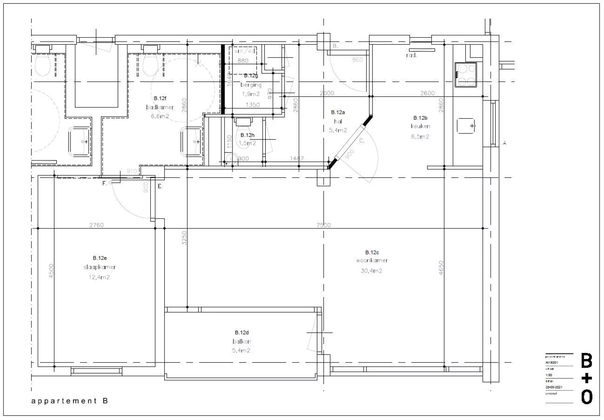
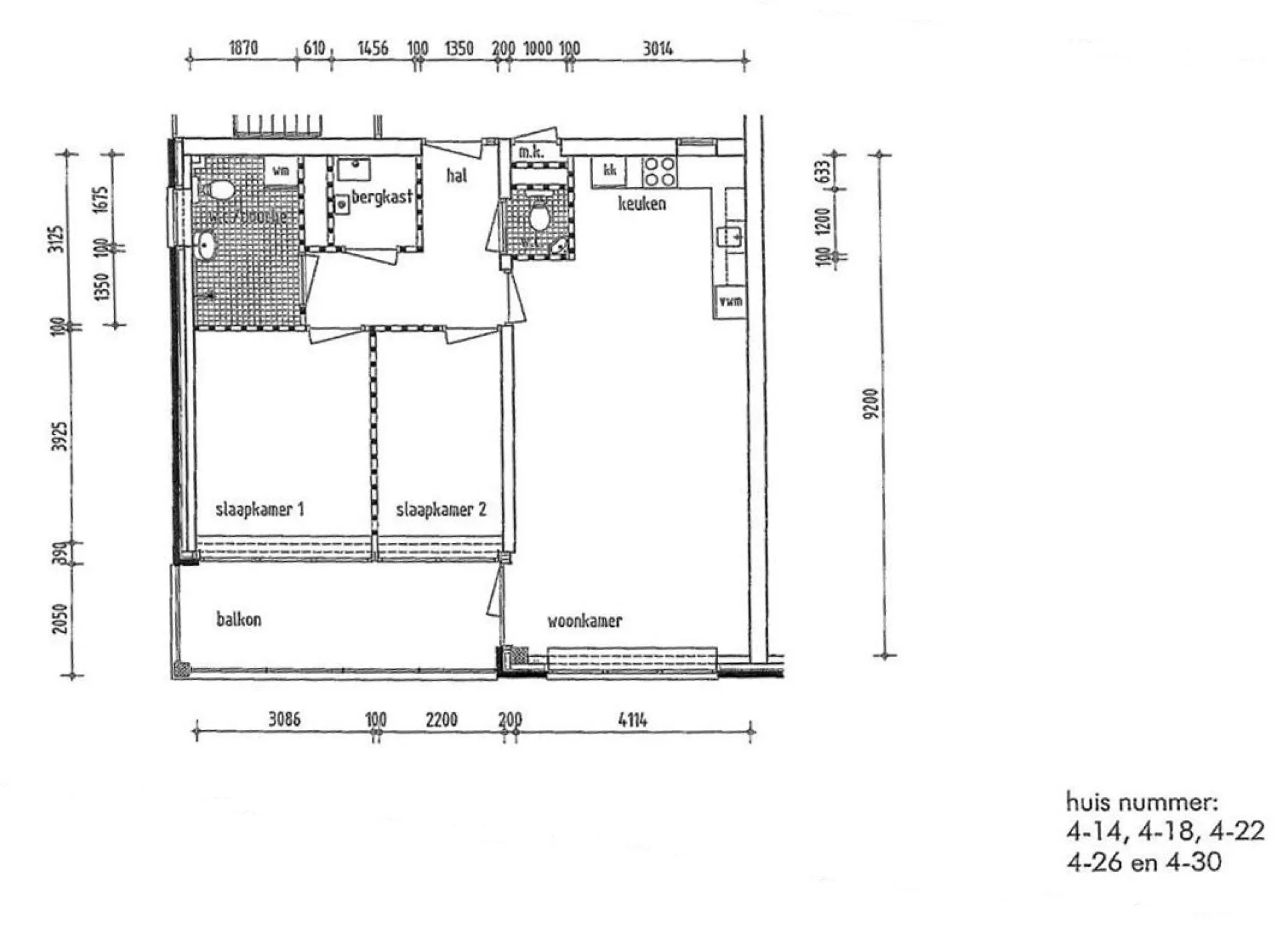
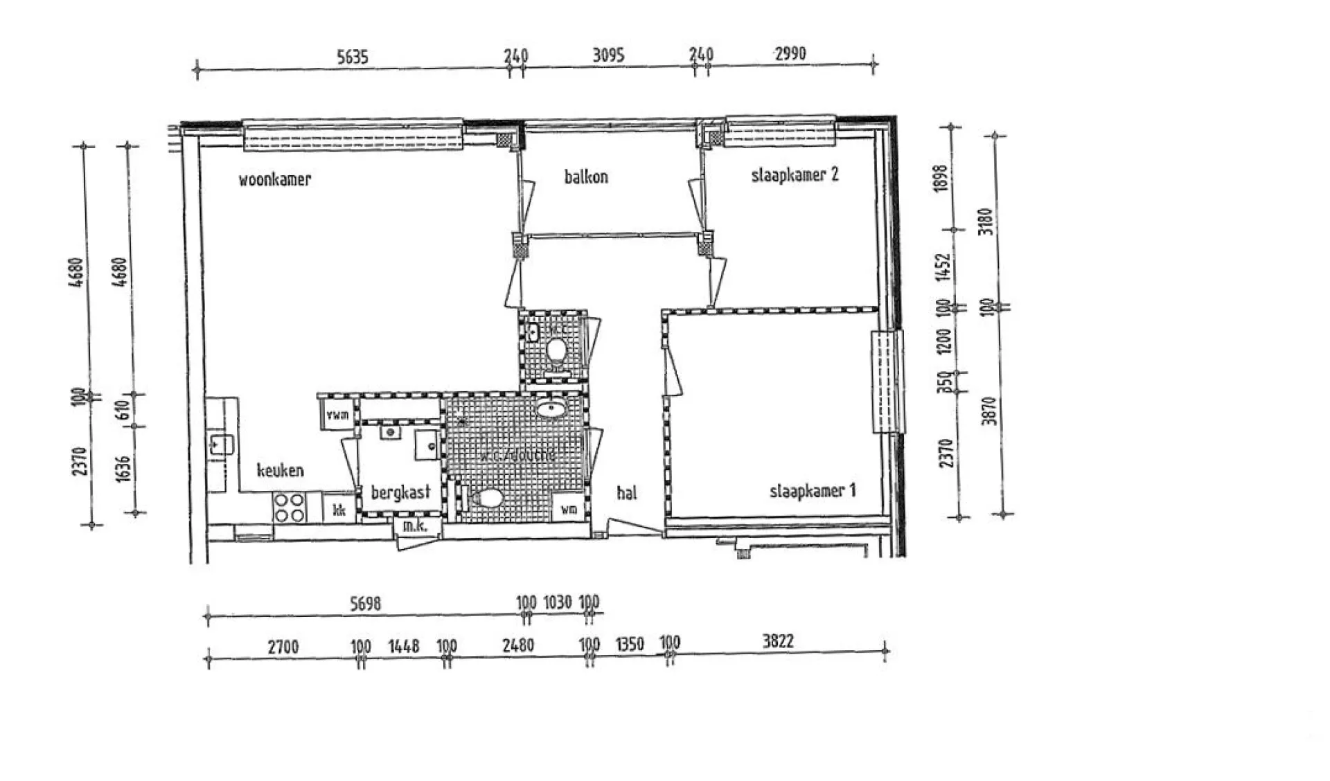
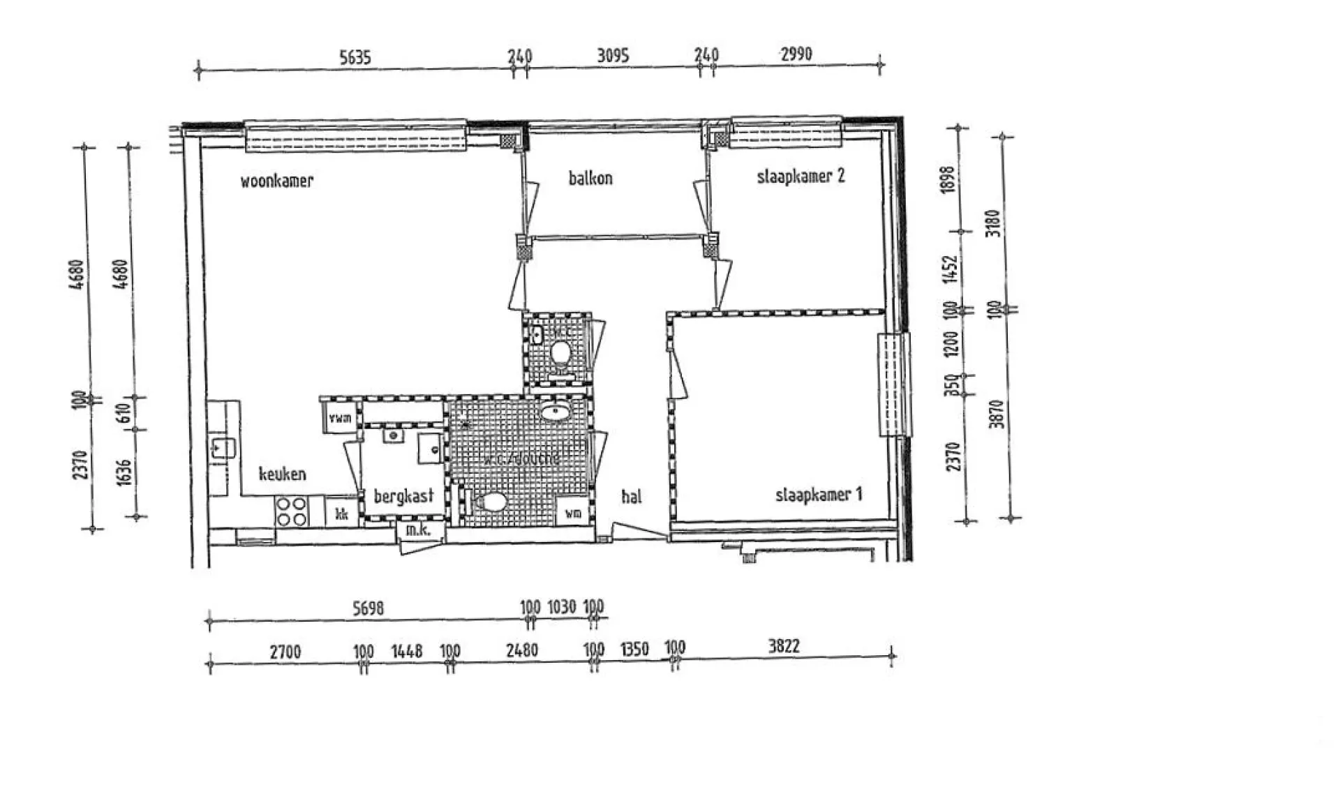
Hoe ziet uw appartement eruit?
De woningen zijn rolstoeltoegankelijk en de keuken, de badkamer en het toilet zijn vernieuwd.
Het appartementencomplex is voorzien van een gezamenlijke entree met lift en trappenhuis naar de verdiepingen. In de appartementen zit een kijk- en luisterverbinding, waarmee u de toegangsdeur (de hoofdingang van het appartementencomplex) kunt openen. In de hal kunt u via een camera zien wie er voor de hoofdingang staat.
